


153 774 ₽/м²
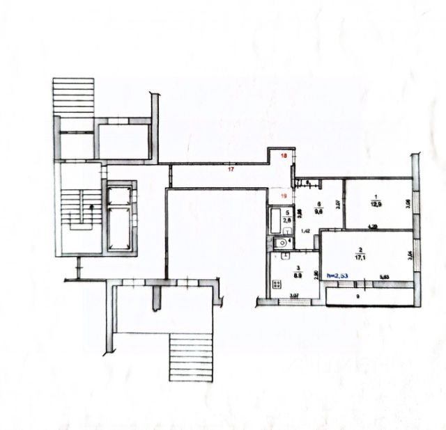
Продается 2-комнатная квартира распашного типа на четвертом этаже. Адрес: ул. Красноармейская, д. 27 б. Общая площадь: 53 м² Планировка: комнаты изолированные (18 м² и 12 м²), кухня 9 м². Собственность: Один взрослый собственник. В собственности более 10 лет (НДФЛ не уплачивается). Обременений нет. Ипотека: возможна покупка без первоначального взноса. В ДКП указывается полная стоимость. Инфраструктура в шаговой доступности: Образование и медицина: детские сады, школы ( 1, 8, 9, 21, 23), детская поликлиника. Магазины: "Магнит", "Пятерочка", "ВкусВилл", аптеки, отделения банков. Спорт и отдых: фитнес-центр, ледовая арена (10 мин. пешком), городской парк, озеро с беговой трассой и велодорожками. Транспорт: 7 мин. на маршрутке до ж/д ст. Раменское. Прямой электропоезд до м. Выхино (25 мин.) и Казанского вокзала (45 мин.). Интервал движения ~30 мин. Купить квартиру вторичка в микрорайоне 1-й в городе Раменское.
























































































